Valkenboskade 290, Den Haag

Verkocht onder voorbehoud

Stel een vraag


Omschrijving

Gelegen aan de populaire en groene Valkenboskade, om de hoek van De Mient, vindt u dit gezellige 4-kamerappartement op de eerste verdieping, met twee slaapkamers, een sfeervolle woon-/eetkamer en een klein maar fijn balkon (zuidwesten).

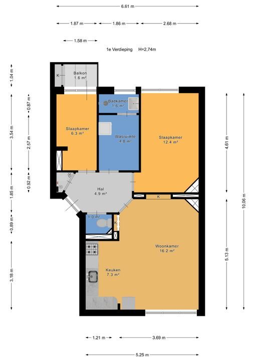
Indeling;
Entree via het gezamenlijke portiek. In de hal ligt een lichte laminaatvloer, die door de gehele woning is doorgelegd. In de vaste kast bevindt zich de opstelplaats voor de groepenkast (7 groepen en 2 aardlekschakelaars) en de cv-ketel (Remeha Tzerra, 2018). Het toilet is netjes afgewerkt en voorzien van een tegelvloer.

De sfeervolle en lichte L-vormige woon-/eetkamer beschikt over leuke vaste nisjes om boeken of glazen in te plaatsen en een originele sierschouw. De open, moderne keuken is voorzien van een inbouwoven, een 4-pits gasfornuis en een losse, moderne koel-/vriescombinatie. Aan de voorzijde bevinden zich kunststof kozijnen met dubbel glas en glas-in-loodramen en vrij uitzicht over de groene kade.

De slaapkamers liggen aan de achterzijde van de woning.
De royale slaapkamer is voorzien van kunststof kozijnen met dubbel glas, die over de gehele achterzijde zijn geplaatst. De kleinere slaapkamer geeft toegang tot het kleine maar zonnige balkon, dat beschikt over een vaste kast en vrij uitzicht biedt over de achtertuinen. Hier kunt u heerlijk genieten van de middag- en avondzon.

Tussen de twee slaapkamers bevindt zich een extra kamer, die gebruikt kan worden als kleedkamer of royale wasruimte. Deze ruimte is voorzien van een wasmachineaansluiting en beschikt achterin over een douche en een wastafelmeubel. Het gedeelte bij de douche is afgewerkt met een tegelvloer.

Kortom: bent u op zoek naar een sfeervolle, instapklare woning aan de populaire Valkenboskade, gelegen nabij de winkels van de Weimarstraat en Fahrenheitstraat en op fietsafstand van het strand?
Dan is dit appartement zeker een bezoek waard!

Aanvullende informatie;
- Oplevering in overleg.
- Gelegen op eeuwig durende erfpachtgrond, met een canon van € 67,82 per jaar, beheerskosten € 33,91 per
half jaar.
- Energielabel D.
- Voorzien van kunststofkozijnen en dubbelglas.
- Actieve VvE met 9 leden, maandelijkse bijdrage van € 100,-, professioneel beheer, kasreserve ca. € 6.272,21,
collectieve opstalverzekering en MJOP aanwezig. Het dak is recent gerenoveerd
- Beschermd Stadsgezicht Valkenboskwartier.
- Kijk voor de exacte maatvoering (NEN2580) naar de officiële meetstaat en plattegronden.
- Verkoopvoorwaarden van Hans Scheenstra Makelaardij zijn van toepassing
- Biedingen welke worden gedaan zonder de woning te hebben gezien, worden mede vanwege de Wet WWFT
niet in behandeling genomen.

De koopovereenkomst wordt conform het NVM-model opgemaakt met de daarbij behorende clausules die gebruikelijk zijn voor een woning uit deze bouwperiode.

Kaart, voorzieningen en reistijd

Street view
Map view
5 min
10 min
15 min
Reistijd
Voorzieningen

Bereken je reistijd

Kies je vervoer
Maximale reistijd
5 min.
10 min.
15 min.
Reis moment
Daluren
Piekuren
Toon resultaten

Voorzieningen

Geef hieronder aan welke voorzieningen u op de kaart wilt tonen.

Kies voorzieningen
School
Dokter
Apotheek
Restaurant
Sportschool
OV
Supermarkt
Ziekenhuis
Kerk
Tandarts
Bioscoop
Kapper
Toon resultaten

Kenmerken

Prijs
€ 324.000 k.k.
Status
Verkocht onder voorbehoud
Oplevering
In overleg

Bouw

Appartement
Portiekwoning, Appartement
Woonlaag
1
Soort bouw
Bestaande bouw
Bouwjaar
1923
Onderhoud binnen
Goed
Onderhoud buiten
Goed
Bijzonderheden
Beschermd stads- of dorpgezicht, Erfgoed

Oppervlakten en inhoud

Oppervlakte
59m²
Inhoud
205m³

Indeling

Kamers
4
Slaapkamers
2
Verdiepingen
1
Voorzieningen
TV-Kabel

Energie

Energielabel
D
Isolatie
Dubbel glas
Warm water
C.V.-ketel

Buitenruimte

Ligging
Aan het water, Aan rustige weg, In woonwijk, Vrij uitzicht

Reageer

Uw bericht is naar ons verzonden. Wij nemen zo snel mogelijk contact met u op.

Er is iets mis gegaan met het versturen van het formulier.
Controleer of u alle velden (goed) heeft ingevoerd en probeer het nog een keer.

U bent geen robot, hoeveel is ?  

Vergelijkbare woningen

Verkocht
Den Helderstraat 64
2547 SN Den Haag
€ 350.000 k.k.
80m² 4 kamers
Verkocht
Kenaustraat 10
2581 TZ Den Haag
€ 375.000 k.k.
57m² 3 kamers
Verkocht
Ahornstraat 77
2565 ZW Den Haag
€ 369.000 k.k.
88m² 4 kamers
Verkocht
Lorentzplein 19
2522 EB Den Haag
€ 325.000 k.k.
101m² 4 kamers