Sinaasappelstraat 11, Den Haag

Verkocht onder voorbehoud

Stel een vraag Download Brochure


Omschrijving

Gelegen in de gewilde Vruchtenbuurt vindt u dit zonnige 4-kamer TOP-APPARTEMENT met achterbalkon, 2 slaapkamers, modern sanitair en keuken alsmede een eigen fietsenberging achter de woning. De Vve heeft op voorhand geen bezwaar tegen dakopbouw en/of dakterras.

Het appartement ligt aantrekkelijk op loopafstand van gezellige eettentjes zoals “Appels & Peren”, Toko Asli, winkels van de Vlierboomstraat en het Savornin Lohmanplein, scholen, sportfaciliteiten, uitstekende OV verbindingen en met de fiets bent u binnen 15 minuten op het strand.

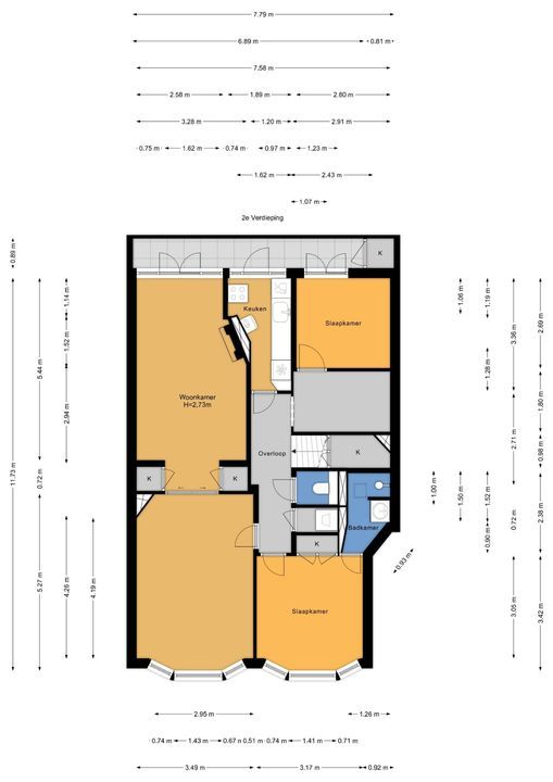
Indeling: entree in “Haagsch” open portiek op de 1e verdieping, ruim portaal met moderne meterkast en inpandige trap naar de 2e verdieping.
Ruime zonnige overloop met groot dakraam, moderne laminaatvloer en royale bergruimte boven het trapgat alwaar huidige eigenaren hun sportfiets plaatsen.
Tevens vindt u hier een vaste kast met opstelplaats voor wasmachine en droger alsmede het moderne toilet uitgevoerd met een wandcloset.

De sfeervolle woon-/eetkamer is v.v. de originele suite separatie met vasten kasten en glas in lood schuifdeuren en zorgt samen met de originele paneeldeuren voor een nostalgische sfeer.

De ruime voorslaapkamer is uitgevoerd met een moderne laminaatvloer, kunststof kozijnen met HR++ glas en een vaste kastenwand.

De moderne badkamer is uitgevoerd met inloopdouche, wastafelmeubel en beschikt over een dakraam waardoor overdag geen kunstlicht nodig is.

De achterslaapkamer is thans opgedeeld in 2 ruimtes, één deel is ingericht als kastenkamer en middels een lichte scheidingswand (eenvoudig te verwijderen) terug te brengen naar de originele indeling tot 1 ruime slaapkamer. Het achterste gedeelte is ingericht als hobbykamer.

De moderne keuken is ook aan de achterzijde van dit lichte appartement gelegen en voorzien van een modern keukenblok met een strak recht keukenblok en diverse apparatuur waaronder koelkast, vaatwasser, los gasfornuis, RVS afzuigkap en opstelplaats voor c.v -combiketel, Remeha Avanta uit 2021.

Het achterbalkon met vrij uitzicht over de achtertuinen van omliggende woningen, is toegankelijk vanuit de woonkamer, keuken en achterslaapkamer.

Achter de portiekwoningen is een afgesloten brandgang en hier is de eigen fietsenberging gelegen.

Samengevat: bent u op zoek naar een fijn, 4-kamer topappartement zonder bovenburen, waarbij originele stijlelementen zijn gecombineerd met modern wooncomfort?
Dan bent u van harte welkom om deze woning te komen bekijken!

Aanvullende informatie:

- Gelegen op eigen grond.
- Oplevering in overleg.
- Actieve VvE, bijdrage € 85,-- per maand, 3 leden echter de 2 VvE’s in het portiek werken en sparen
samen. Kasreserve ca. € 18.000,--, administratie in eigen beheer, inschrijving KvK aanwezig
alsmede collectieve opstalverzekering. In 2023 is de balkon- en gevelrenovatie voltooid.
- Het gehele appartement is v.v. verdiepte kunststof kozijnen met HR++ glas
- Energielabel E.
- Kijk voor de exacte maatvoering (NEN 2580) naar de officiële meetstaat en plattegrond.
- Verkoopvoorwaarden van ons kantoor zijn van toepassing.
- Biedingen welke worden gedaan zonder de woning te hebben gezien, worden mede
vanwege de Wet WWFT, niet in behandeling genomen.

De koopovereenkomst wordt conform het NVM model opgemaakt met de daarbij behorende clausules die gebruikelijk zijn voor een woning uit deze bouwperiode.
Interesse in dit huis? Schakel direct uw eigen aankoopmakelaar in.

Kaart, voorzieningen en reistijd

Street view
Map view
5 min
10 min
15 min
Reistijd
Voorzieningen

Bereken je reistijd

Kies je vervoer
Maximale reistijd
5 min.
10 min.
15 min.
Reis moment
Daluren
Piekuren
Toon resultaten

Voorzieningen

Geef hieronder aan welke voorzieningen u op de kaart wilt tonen.

Kies voorzieningen
School
Dokter
Apotheek
Restaurant
Sportschool
OV
Supermarkt
Ziekenhuis
Kerk
Tandarts
Bioscoop
Kapper
Toon resultaten

Kenmerken

Prijs
€ 389.000 k.k.
Status
Verkocht onder voorbehoud
Oplevering
In overleg

Bouw

Appartement
Bovenwoning, Appartement
Woonlaag
3
Soort bouw
Bestaande bouw
Bouwjaar
1931-1944
Onderhoud binnen
Goed
Onderhoud buiten
Goed

Oppervlakten en inhoud

Oppervlakte
88m²
Overig
1m²
Inhoud
300m³

Indeling

Kamers
4
Slaapkamers
2
Verdiepingen
1
Voorzieningen
Mechanische ventilatie, Dakraam, TV-Kabel, Rookkanaal

Energie

Energielabel
E
Isolatie
Dubbel glas
Warm water
C.V.-ketel

Buitenruimte

Ligging
Aan rustige weg, In woonwijk
Balkon
Ja
Schuur
Vrijstaand steen

Documenten

Reageer

Uw bericht is naar ons verzonden. Wij nemen zo snel mogelijk contact met u op.

Er is iets mis gegaan met het versturen van het formulier.
Controleer of u alle velden (goed) heeft ingevoerd en probeer het nog een keer.

U bent geen robot, hoeveel is ?  

Vergelijkbare woningen

Verkocht
Lindestraat 15
2565 HK Den Haag
€ 439.000 k.k.
90m² 6 kamers
Verkocht
Kenaustraat 10
2581 TZ Den Haag
€ 375.000 k.k.
57m² 3 kamers
Verkocht
Irisstraat 149
2565 TJ Den Haag
€ 389.000 k.k.
89m² 4 kamers
Verkocht
Lorentzplein 19
2522 EB Den Haag
€ 325.000 k.k.
101m² 4 kamers