Vlasakkersstraat 9, Den Haag

Verkocht

Stel een vraag Download Brochure


Omschrijving

Deze riante eengezinswoning met voor- en achtertuin is gelegen in de Vlasakkerstraat. Deze straat kenmerkt zich door de jaren ’20 woningen met voortuinen aan beide zijden van de straat. Scholen, winkels, openbaar vervoer en het Zuiderpark zijn in de nabije omgeving te vinden.

Indeling; entree via eigen voortuin, vestibule met granitovloer en originele wandtegels, via de tochtdeur met glas in loodraam is er doorloop naar de gang met een trapkast (groepenkast met 10 groepen en 3 aardlekschakelaars en kookgroep). Vanuit de hal is er toegang tot de woon-eetkamer.

De woon-eetkamer is verdeeld in een voorkamer met gezellige erker, laminaatvloer, open haard (niet in gebruik) en een doorloop naar de achterkamer welke aan de keuken en achtertuin grenst. In de achterkamer vind je openslaande deuren (houten kozijnen met dubbel glas) naar de riante achtertuin. Ondanks de ligging op het noorden kun je dankzij de diepte van de tuin heel wat zonuren meepakken. Achter in de tuin staat een houten berging.

De halfopen keuken is opgesteld in een L-vorm en is ca. 6 jaar oud. De keuken is uitgevoerd met diverse apparatuur zoals een inductie kookplaat, elektrische oven, afzuigkap, vaatwasser, koelkaste en vriezer en ook vanuit de keuken is er een deur naar de achtertuin.

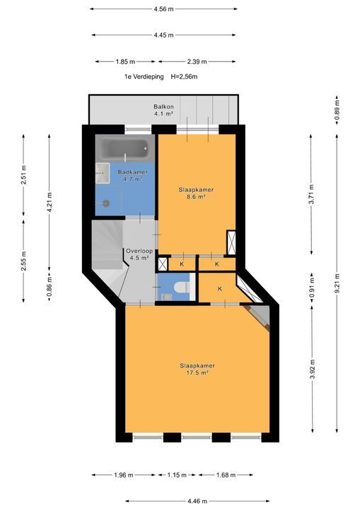
1e verdieping; overloop met tapijt, modern separaat toilet met wandcloset en fonteintje. De hoofdslaapkamer is aan de voorzijde van de woning gelegen en beslaat de gehele breedte van de woning waardoor deze kamer van ruime maatvoering is. De kamer is voorzien van een laminaatvloer, grote raampartijen, een vaste kast en een hoekschouw. Verder heeft deze kamer een aircounit waarmee de ruimte kan worden gekoeld of verwarmd. De achterslaapkamer is voorzien van eenzelfde laminaatvloer, twee grote vaste kasten en openslaande deuren naar het achterbalkon. De moderne badkamer is ook aan de achterzijde van de woning gelegen en bestaat uit een inloopdouche, whirlpool, wastafel met wastafelmeubel en handdoekradiator.

2e verdieping; via een vaste trap kom je op de zolderverdieping welke geheel is bevloerd. Aan de achterzijde is een dakkapel geplaatst waardoor er extra ruimte en lichtinval is ontstaan. Achter schuifdeuren bevindt zich veel bergruimte. De zolder dient door de nieuwe bewoner verder afgewerkt te worden, en biedt voldoende ruimte om bijvoorbeeld één of twee extra slaapkamers te creëren. Op zolder vind je ook de opstelplaats voor de wasmachine en de droger en de cv-combiketel (Remeha Avanta, 2017).

Kortom; op zoek naar een fijne eengezinswoning met zowel voor- als achtertuin, gelegen in een rustige straat met gezellige voortuinen en op loopafstand van winkels, scholen, openbaar vervoer en het Zuiderpark?
Dan is en bezoek aan dit fijne familiehuis zeker de moeite waard!

Aanvullende informatie:

- Gelegen op eeuwigdurend afgekochte erfpachtsgrond
- Oplevering in overleg.
- Energielabel C, vrijwel geheel voorzien van dubbel glas
- Kijk voor de exacte maatvoering (NEN 2580) naar de officiële meetstaat en plattegrond
- Verkoopvoorwaarden van ons kantoor zijn van toepassing
- Biedingen welke worden gedaan zonder de woning te hebben gezien, worden mede vanwege de Wet WWFT, niet in behandeling genomen
- Notariskeuze door koper, echter wel in werkgebied Haaglanden.

De koopovereenkomst wordt conform het NVM model opgemaakt met de daarbij behorende clausules die gebruikelijk zijn van een woning uit deze bouwperiode.

Kaart, voorzieningen en reistijd

Street view
Map view
5 min
10 min
15 min
Reistijd
Voorzieningen

Bereken je reistijd

Kies je vervoer
Maximale reistijd
5 min.
10 min.
15 min.
Reis moment
Daluren
Piekuren
Toon resultaten

Voorzieningen

Geef hieronder aan welke voorzieningen u op de kaart wilt tonen.

Kies voorzieningen
School
Dokter
Apotheek
Restaurant
Sportschool
OV
Supermarkt
Ziekenhuis
Kerk
Tandarts
Bioscoop
Kapper
Toon resultaten

Kenmerken

Prijs
€ 419.000 k.k.
Status
Verkocht
Oplevering
In overleg

Bouw

Woonhuis
Eengezinswoning, Tussenwoning
Soort bouw
Bestaande bouw
Bouwjaar
1929
Onderhoud binnen
Goed
Onderhoud buiten
Goed

Oppervlakten en inhoud

Oppervlakte
106m²
Perceel
134m²
Inhoud
373m³

Indeling

Kamers
5
Slaapkamers
3
Verdiepingen
3
Voorzieningen
TV-Kabel, Rookkanaal

Energie

Energielabel
C
Isolatie
Dubbel glas
Warm water
C.V.-ketel

Buitenruimte

Ligging
In woonwijk
Balkon
Ja
Tuin
Achtertuin, Voortuin
Achtertuin
43m², 434×1000cm
Schuur
Vrijstaand hout

Documenten

Reageer

Uw bericht is naar ons verzonden. Wij nemen zo snel mogelijk contact met u op.

Er is iets mis gegaan met het versturen van het formulier.
Controleer of u alle velden (goed) heeft ingevoerd en probeer het nog een keer.

U bent geen robot, hoeveel is ?  

Vergelijkbare woningen

Verkocht
Lindestraat 15
2565 HK Den Haag
€ 439.000 k.k.
90m² 6 kamers
Verkocht
Den Helderstraat 64
2547 SN Den Haag
€ 350.000 k.k.
80m² 4 kamers
Verkocht
Goudreinetstraat 149
2564 PP Den Haag
€ 500.000 k.k.
102m² 5 kamers
Verkocht
Segbroeklaan 406 N
2565 EA Den Haag
€ 389.000 k.k.
91m² 4 kamers